SINGLE-Lid RECESSED INFILL UTILITY ACCESS COVERS

WUNDER-COVERS

Advanced Traffic Supplies pioneered the Wunder-Cover system over 35 years ago, solving a common infrastructure problem: how to provide utility access without compromising aesthetics.

Traditional cast-iron manhole covers are functional but visually intrusive. Wunder-Covers use a recessed infill system that allows access points to blend seamlessly with surrounding surfaces – pavers, tiles, cobblestones, lawns, or gardens.

Manufactured in New Zealand.

WUNDER-COVER FEATURES & SPECIFICATIONS

R

NZ Made & Custom Sizing

Manufactured in New Zealand. Standard sizes or custom dimensions available.

R

Versatile Applications

Ideal for pavers, tiles, cobblestones, lawns, gardens, and streetscape projects.

R

Trusted by Councils

Used by councils and developers throughout New Zealand for civic and commercial projects.

R

Class D Load Rated

Standard 600×600 unit tested to 25 tonnes. Specify load requirements when ordering.

R

Lightweight Design

Standard 600x600x100 unit weighs only 25kg pre-installation. Comparable to cast-iron when filled.

R

Cost-Effective Solution

Professional finish without compromising functionality or aesthetics.

R

Hot-Dipped Galvanised

Durable galvanised steel construction. Also available in stainless steel.

R

Easy Installation

Simple 4-step process with detailed installation guides. Removable with standard utility lifting keys.

R

Multiple Configurations

Single-lid, double-lid, and multi-lid options available for various access requirements.

INSTALLATION GUIDE

Wunder-Cover Installation Process

Wunder-Covers are designed for straightforward installation with our detailed 4-step process:

Step 1: Set Frame Set the frame to desired level. Orient to suit paver pattern. Frame must be fully supported including internal flanges and gussets.

Wunder-Cover Installation Guide - Step 1

Step 2: Plaster Gaps Plaster all gaps. Leave sufficient depth for pavers to fit over external flanges. Once plaster is firm, pavers can be laid and cut to frame edge.

Wunder-Cover Installation Guide - Step 2

Step 3: Insert Lid & Lay Pavers Insert lid. Screed sand, lay and cut pavers as normal.

Wunder-Cover Installation Guide - Step 3

Step 4: Fill & Compact Fill joints with dry sand. Compact carefully in the usual manner.

Wunder-Cover Installation Guide - Step 4

IMPORTANT INFORMATION

INSTALLATION NOTES

  • Contact us for advice on unusually heavy loads
  • Tiles/asphalt can be set with partial concrete fill
  • Removable with standard utility lifting keys
  • Standard depth: 100mm (custom depths available)

PRODUCT DATASHEETS

Download Specs & Datasheets

Includes dimensions, load ratings, materials, and installation details.

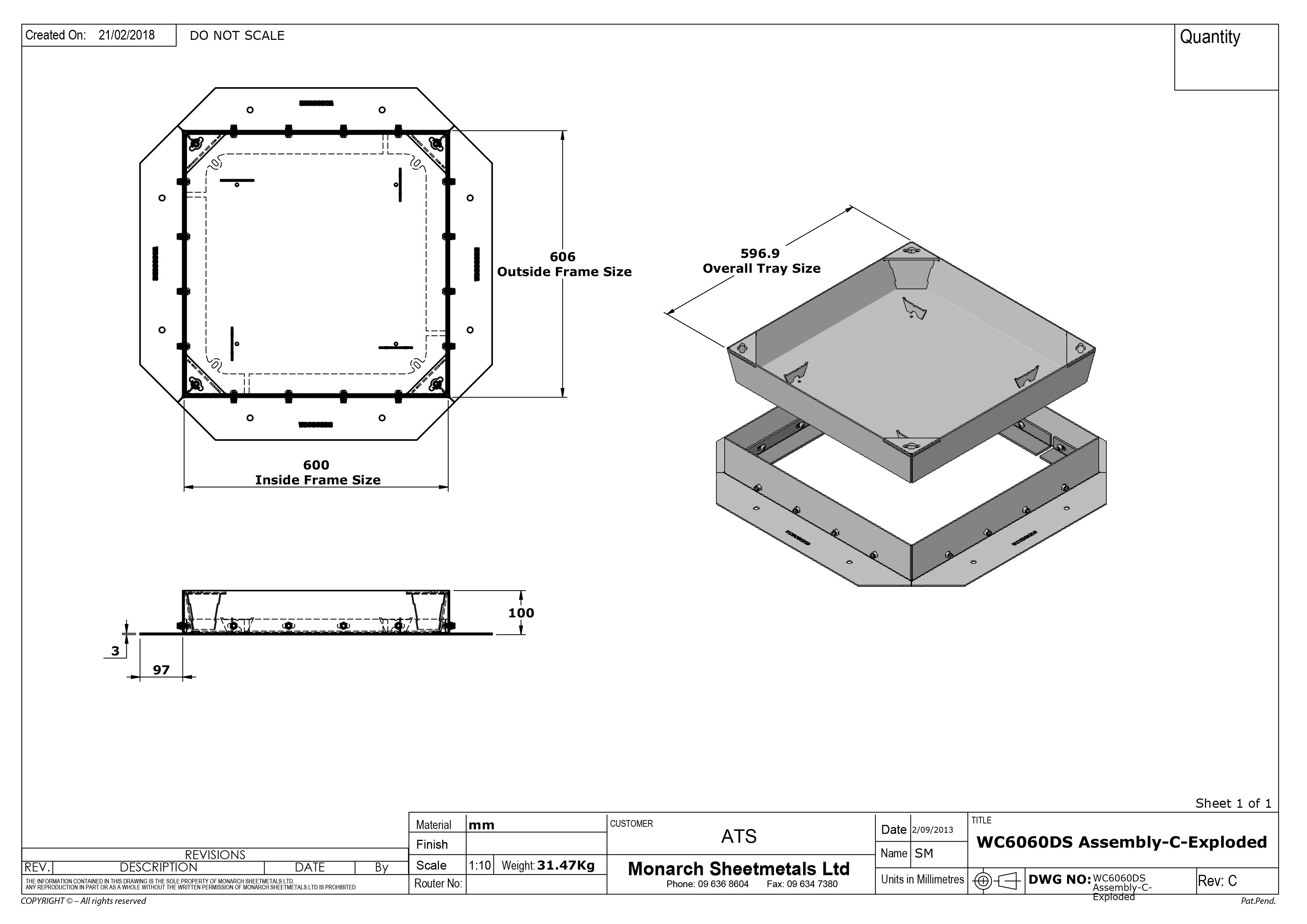
TECHNICAL DRAWINGS

STANDARD SIZES & SPECIFICATIONS

Custom sizing to order

Stocked Items:

  • WC4545AS (450 x 450 x 100)
  • WC6060DS (600 x 600 x 100)

NEED HELP?

TECHNICAL SUPPORT

Installing a infill-lid system for the first time? Our team provides technical support for contractors and specifiers.

  • Installation guidance
  • Frame support calculations
  • Custom configuration advice
  • Site-specific recommendations

FAQ

Frequently Asked

What are Wunder-Covers?

Wunder-Covers are recessed infill manhole covers designed to blend seamlessly with surrounding surfaces. The recessed tray accepts pavers, tiles, cobblestones, lawns, or gardens, making utility access virtually invisible while maintaining full functionality.

What sizes are available?

Standard sizes include 600x600mm (single lid), 600x1200mm (double lid), and various configurations for water meters and utility access. Custom dimensions are available for special requirements. [View all sizes and configurations]

What load rating do Wunder-Covers have?

Wunder-Covers are designed to Class D load rating. Standard 600x600mm units are tested to 25 tonnes, suitable for driveways, car parks, and light-traffic areas. Contact us for advice on heavy-load applications.

What materials are they made from?

Wunder-Covers are manufactured from hot-dipped galvanised steel as standard, with stainless steel available for coastal or high-salt environments. All covers are built for long-term durability in New Zealand conditions.

How deep are Wunder-Covers?

Standard depth is 100mm, which accommodates most paver and tile applications. Custom depths are available upon request for specific project requirements.

Can I use Wunder-Covers with tiles or concrete?

Yes. For tiles, asphalt, or similar rigid surfaces, the cover can be partially filled with concrete for added stability. The recessed design works with any surface material.

How do I remove a Wunder-Cover for maintenance?

Wunder-Covers are easily removed using standard utility lifting keys (T-handle lifters). The lightweight design (standard 600×600 unit weighs only 25kg) makes removal and reinstallation straightforward.

Do I need special tools for installation?

No special tools required. Wunder-Covers install using standard construction tools and techniques. Full installation guides and technical support are provided with every order.

ABOUT WUNDER-COVERS

Advanced Traffic Supplies pioneered the Wunder-Cover system over 25 years ago, solving a common infrastructure problem: how to provide utility access without compromising aesthetics.

Traditional cast-iron manhole covers are functional but visually intrusive. Wunder-Covers use a recessed infill system that allows access points to blend seamlessly with surrounding surfaces – pavers, tiles, cobblestones, lawns, or gardens.

HOW IT WORKS

The system consists of a hot-dipped galvanised steel frame and recessed lid. The frame is set around the access point, and the recessed tray accepts whatever surface material surrounds it. Once installed, only a thin frame outline remains visible while maintaining full access for maintenance.

WHY WUNDER-COVERS

As the original designers and manufacturers, we’ve perfected our system over 25+ years. Every unit is made in New Zealand with options for custom sizing, load ratings, and material specifications. We provide complete technical support from specification through installation.